2026/03/24 13:49:10
次回更新予定 令和08年3月24日

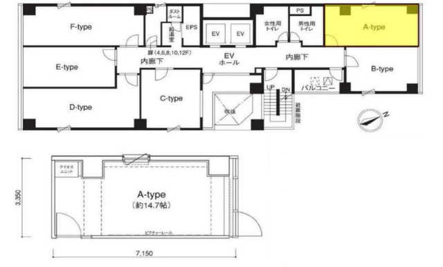
46885:事務所 アイオス虎ノ門

賃料 31.13万円
共益費・管理費  
坪賃料 43,000円
所在地 東京都港区西新橋1丁目
交通 銀座線 虎ノ門駅まで 徒歩3分
面積 23.95m²(7.24坪)
築年月 2009/01
敷金 -
礼金 -
保証金 2ヶ月
建物構造 鉄筋コンクリート造
所在階 6階/12階建
取引態様 仲介
更新 可 2年 更新料:新賃料1ヶ月
敷引・償却 2ヶ月
火災保険 要加入10,890円
保証会社  
駐車場 空無 
諸費用  
引渡時期  
特色

フロントサービス(平日9:00~17:30 来訪者へのインフォメーションサービス(受付・案内・書類引渡し等、応接室・会議室の予約受付 宅配便の取次・不在時の預り)、会議室(平日9:00~20:00 日祝日9:00~18:00(年末年始を除く)、利用料1時間2,200円(税込)、ドリンク・フロントスタッフによるティーサービス(応接室1・2、ミーティングルーム1)、フリードリンク(ミーティンぐルーム2・3))、備品等(モニター・集音マイク・スピーカー・Webカメラ,各種接続ケーブル等使用可、各部屋にLANケーブル設置及び無料Wi-Fi接続可)、コピー機(ネットワークプリンターとして使用可)、コピー代金1枚当たり白黒5円、カラー25円、フロア共用男女トイレ別、給湯室(電子レンジ設置)、館内に喫煙スペース有、防犯カメラ、24時間警備システム(SECOM),入居時カードキー3枚貸与(1枚追加2,200円(税込))、光ケーブル有り(別途契約必要)

コメント

4月末迄のお申込みで壁紙とフロアタイルの柄が選べます(材料は貸主指定)。法人登記可。1Fエントランスに社名板設置(入居時11,000円(税込))。平日毎日ゴミ回収。週1回床清掃(無料)。電話回線5回線迄可。電気使用料は各戸メーター検針による