45927:MS パークコート浜離宮ザタワー
| 賃料 | 82万円 |
|---|---|
| 共益費・管理費 | |
| 所在地 | 東京都港区浜松町1丁目 |
| 交通 | 山手線 浜松町駅まで 徒歩6分 |
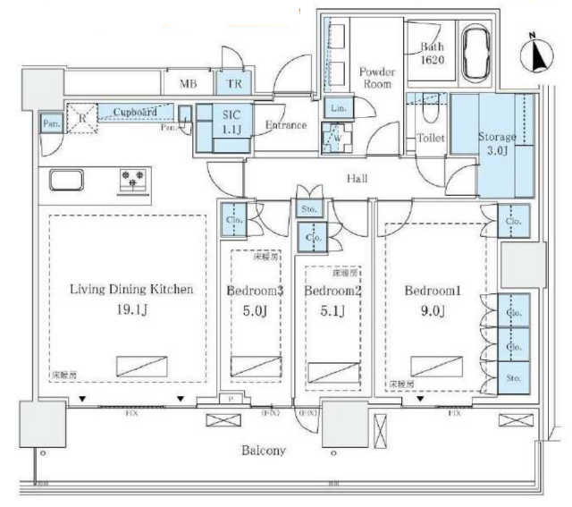
| 間取 | 3LDK |
| 総戸数 | |
| 面積 | 97.33m²(29.44坪) |
| 築年月 | 2019/02 |
| 敷金 | 1ヶ月 |
|---|---|
| 礼金 | 2ヶ月 |
| 保証金 | - |
| 建物構造 | 鉄筋コンクリート造地下1階建 |
| 所在階 | 12階/37階建 |
| 学区 | |
| 取引態様 | 仲介 |
| 更新 | 定期借家2年 更新料:再契約可 |
| 敷引・償却 | - |
|---|---|
| 火災保険 | 要加入- |
| 保証会社 | 必須 ①初回保証料プラン:賃料総額の50%(最低20,000円)、②年間保証料:9600円 口座振替事務手数料 110円/月 |
| 駐車場 | 有46,200円 |
| 諸費用 | 鍵交換費用33,000円 クリーニング費182,007円 エアコンクリーニング代25,000円 |
| 入居時期 | 即時 |
特色
建物管理会社:三井不動産レジデンシャルサービス湾岸支店、、床暖房、エアコン、食洗機、浴室乾燥機能付、バス・トイレ別(追炊き機能付)、CATV、コンロ、グリル、オートロック、宅配ボックス、常駐管理、トランクルーム(0.59㎡)、駐車場、洋室(フローリング)、温水洗浄便座、システムキッチン(ガス3口)、浄水器、シューズインクローゼット、ラウンジ、フロントサービス
コメント
電子契約不可。契約開始後1年未満での解約の場合、違約金有。




