44856:事務所 第3虎の門電気ビルディング
| 賃料 | 261.86万円 |
|---|---|
| 共益費・管理費 | 374,088円 |
| 坪賃料 | 31,000円 |
| 所在地 | 東京都港区虎ノ門1丁目 |
| 交通 | 銀座線 虎ノ門駅まで 徒歩3分 日比谷線 虎ノ門ヒルズまで 徒歩3分 |
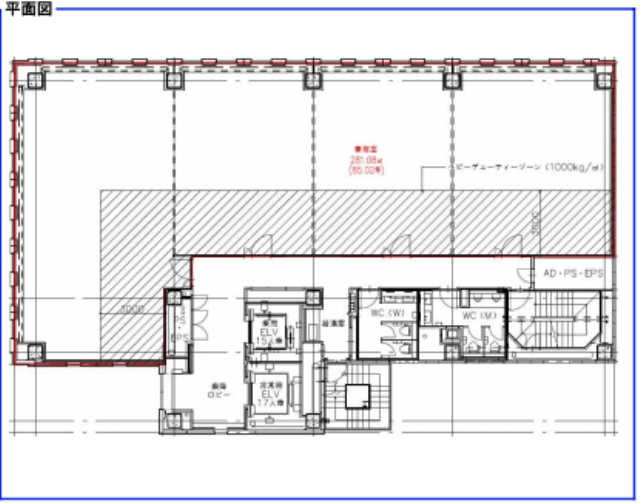
| 面積 | 281.08m²(85.02坪) |
| 築年月 | 2013/02 |
| 敷金 | - |
|---|---|
| 礼金 | - |
| 保証金 | 12ヶ月 |
| 建物構造 | 鉄骨造・鉄骨鉄筋コンクリート造地下1階建 |
| 所在階 | 6階/12階建 |
| 取引態様 | 仲介 |
| 更新 | 2年 |
| 敷引・償却 | - |
|---|---|
| 火災保険 | 要加入- |
| 保証会社 | |
| 駐車場 | 有(要空き確認) |
| 諸費用 | |
| 引渡時期 | 2026年06月上旬 |
特色
フロア共用男女トイレ別、個別空調、OAフロア、機械警備、エレベータ2基








