43785:事務所 日本女子会館ビル
| 賃料 | 7.07万円 |
|---|---|
| 共益費・管理費 | 14,135円 |
| 坪賃料 | 14,000円 |
| 所在地 | 東京都港区芝公園2丁目 |
| 交通 | 都営三田線 芝公園駅まで 徒歩3分 |
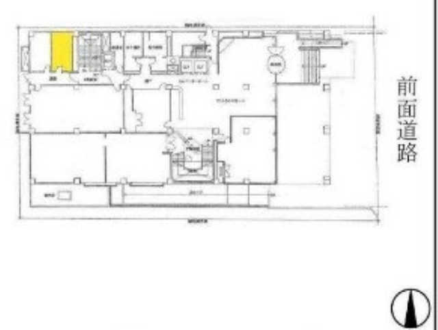
| 面積 | 16.99m²(5.13坪) |
| 築年月 | 1974/09 |
| 敷金 | 6ヶ月 |
|---|---|
| 礼金 | - |
| 保証金 | - |
| 建物構造 | 鉄骨鉄筋コンクリート造地下1階建 |
| 所在階 | 1階/8階建 |
| 取引態様 | 仲介 |
| 更新 |
| 敷引・償却 | - |
|---|---|
| 火災保険 | - |
| 保証会社 | 可 |
| 駐車場 | |
| 諸費用 | |
| 引渡時期 |
特色
ビンテージホテルを彷彿させるヴィンテージエントランスホールです。エレベータ2基、トイレ・水回り・給湯は2022年にリニューアル済。耐震補強工事済(2008年2月)、タイルカーペット、個別空調、、男女トイレ別(共用・洋式)、機械警備、有人警備
コメント
賃貸面積に共用部分含む(3.31㎡)。ビル使用可能時間(平日・土日祝日6:30~22:00 元日と受電設備年次点検日は休館)。共用部水道料金・消耗品費は賃貸面積に応じて賃借人負担。専有部空調機フィルター清掃費用及び日常廃棄物処理費用は賃借人負担。緑の多い芝公園近くの落ち着いた環境です。






