1853:MS ピアネッタ汐留
| 賃料 | 19.2万円 |
|---|---|
| 共益費・管理費 | 20,000円 |
| 所在地 | 東京都港区東新橋2丁目 |
| 交通 | 山手線 新橋駅まで 徒歩6分 都営大江戸線 汐留駅まで 徒歩5分 |
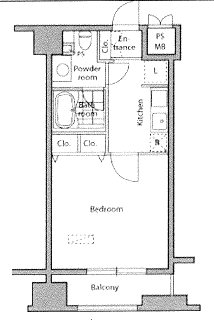
| 間取 | 1K |
| 総戸数 | 66戸 |
| 面積 | 30.02m²(9.08坪) |
| 築年月 | 2005/02 |
| 敷金 | - |
|---|---|
| 礼金 | - |
| 保証金 | - |
| 建物構造 | 鉄筋コンクリート造 |
| 所在階 | 6階/12階建 |
| 学区 | |
| 取引態様 | 一般媒介 |
| 更新 | 2年 更新料:1ヶ月 |
| 敷引・償却 | - |
|---|---|
| 火災保険 | 要加入21,500円 保険期間2年 |
| 保証会社 | 可 【IRS③】IUCレジデンシャルサポート ①初回保証料プラン:賃料総額の40%、②更新料年間10,000円 月額1000円。 |
| 駐車場 | |
| 諸費用 | 鍵交換費用22,000円 インターネット使用料(利用の有無に関わらず)/月1,650円 入居者限定会員サービス(2年)11,000円 |
| 入居時期 | 2026年05月上旬 |
特色
バストイレ別、システムキッチン、ガスコンロ(2口)、室内洗濯機置場、全居室フローリング、エアコン、収納、シューズボックス、バルコニー、カメラ付インターホン、エレベータ、宅配ボックス、オートロック、二階以上、独立洗面所、インターネット対応(光)、BS、2026年4月室内リノベーション完工予定(キッチン・洗面台・浴室・フローリング)、防犯カメラ、温水洗浄便座、浴室乾燥機能付
コメント
キッチンと居室が仕切られているので使いやすいお部屋です。
玄関から部屋に至る廊下の幅がゆったり居ています。
スーパー『ピアゴ』徒歩1分、ファミリマート徒歩1分と便利。個人契約に限り敷金0。契約開始後1年未満での解約の場合、賃料1ヶ月分の解約違約金有。セカンドハウス利用不可。
周辺地図
位置情報に関するご注意:現在位置情報は精査中の為、正確ではない場合があります。あくまで参考程度の情報となります。




















